Guide Price £560,000

6 bed terraced house for sale in Oxford Road, Exeter, EX4

Shortlist

Key features

  • INVESTMENT OPPORTUNITY
  • SIX BEDROOM LICENSED STUDENT HMO
  • PRIME LOCATION
  • PRE LET FOR 2026/27 £48,642
  • GOOD CONDITION THROUGHOUT
  • PRIVATE PARKING
SUMMARY A fantastic fully licensed HMO student investment property - a well presented and well maintained mid terraced house, with 6 double bedrooms, large kitchen with a separate lounge, and a good sized back garden. Oxford Road is situated approximately 5 minutes from the city centre and 15 minutes from campus.

Key Features:

Location: Situated in a desirable area close to the city centre, local amenities, public transport and the university.

Living Space: Finished to a good standard. Comfortable communal area perfect for relaxing and socialising.

Bedrooms: 6 generously sized rooms, each room is in good decorative order.

Outdoor area: A low maintenance paved rear garden.

Parking: Permit resident parking on the road available.

Property Tenure: Freehold
Council Tax: A
EPC: D

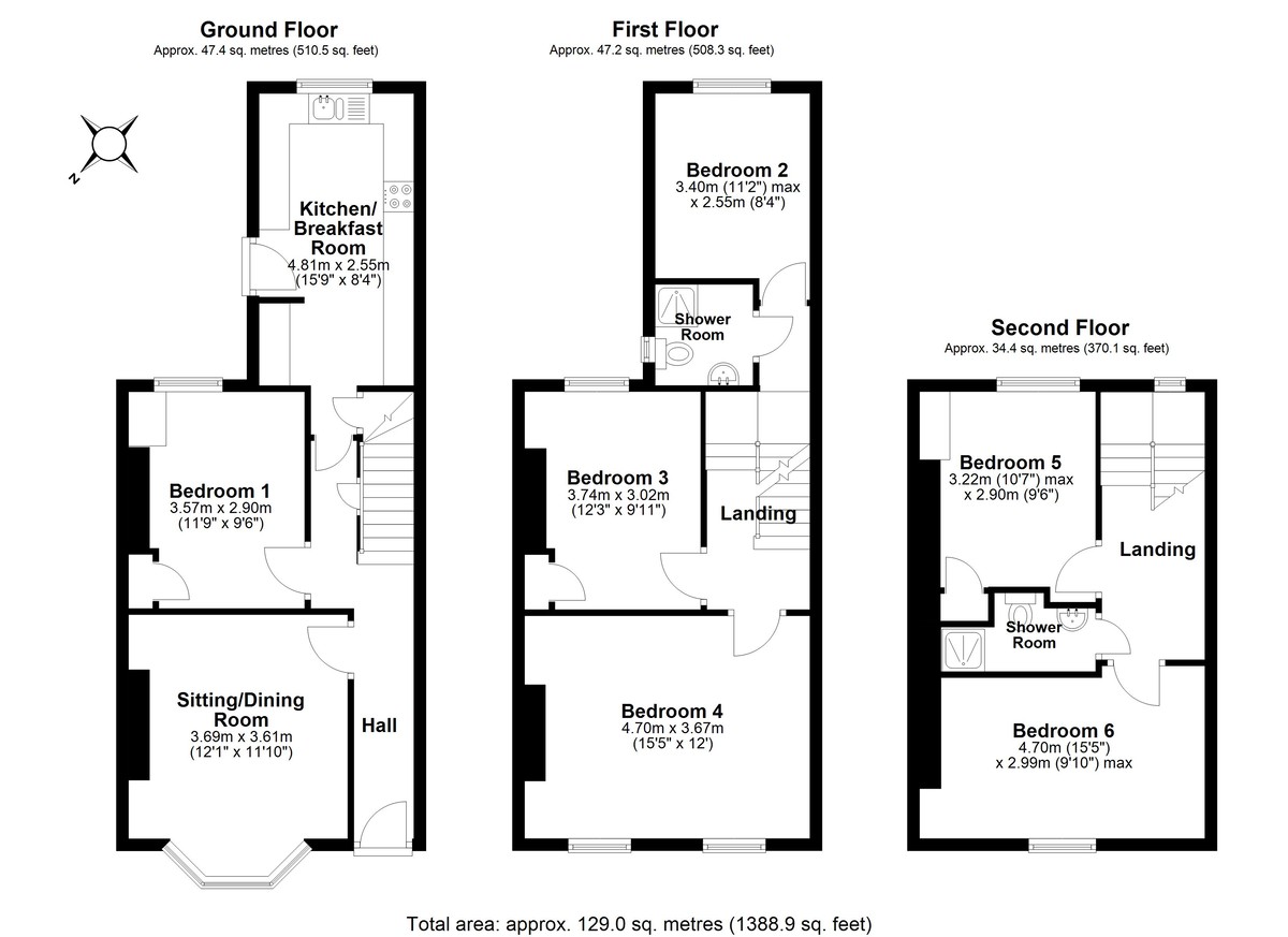
SITTING/DINING ROOM 12' 1" x 11' 10" (3.69m x 3.61m) Spacious comfortable living space, with uPVC window to the front, TV point, alcoves for storage and radiator.

BEDROOM 1 11' 8" x 9' 6" (3.57m x 2.90m) Ground floor bedroom with uPVC window to back of property, radiator and storage cupboard.

KITCHEN/BREAKFAST ROOM 15' 9" x 8' 4" (4.81m x 2.55m) Large kitchen area with breakfast bar, base and wall units with tiled flooring. Sink with mixer taps and drainage rack. uPVC window to back of property. Door to garden. Oven, induction hob and extractor hood. Plumbing and gap for free standing washing machine and tumble dryer. Space for two further free standing fridge freezers.

BEDROOM 2 11' 1" x 8' 4" (3.40m x 2.55m) First floor bedroom, with uPVC window to the back and radiator.

SHOWER ROOM uPVC window, sink and WC, enclosed shower cubical with mains powdered shower, tiled flooring and radiator.

BEDROOM 3 12' 3" x 9' 10" (3.74m x 3.02m) First floor bedroom with uPVC window to back of property, radiator and storage cupboard.

BEDROOM 4 15' 5" x 12' 0" (4.70m x 3.67m) Large first floor bedroom with two uPVC windows facing to the front of the property and radiator.

BEDROOM 5 10' 6" x 9' 6" (3.22m x 2.90m) Third floor bedroom, with uPVC window looking to the back of the property, storage cupboard and radiator.

SHOWER ROOM Enclosed shower cubical with electric shower, sink, WC and tiled flooring.

BEDROOM 6 15' 5" x 9' 9" (4.70m x 2.99m) Third floor bedroom, with uPVC window looking to the front of the property and radiator.

LETTING/RENTAL INFORMATION Rented for 2025/26 academic year for £4158pcm. Tenants found and secured for the academic year 2026/27 for £4422pcm.

SERVICES Electric Supply: Mains
Heating Supply: Mains Gas
Sewerage: Mains
Water Supply: Mains
Mobile Signal: Several networks showing as available including EE, Vodaphone, 3 and 02
Broadband: Standard, Superfast and Ultrafast

Stamp duty due

Based on a sale price of £560,000 the total amount of stamp duty payable will be:

*

Last updated: The calculator has been updated to reflect changes in stamp duty following the Autumn Budget on 30th October 2024 for April 1st 2025 onwards.

* This value is based on the standard rate and not applicable to first-time buyers or buy-to-let / second home buyers.

Further details

  • Status: Available
  • Council tax band: A
  • Tenure: Freehold
  • Reference: 697327

What else you need to know?

Utility supply, rights and restrictions

  • Utility supply
    • Broadband: ADSL
    • Electricity supply: Mains
    • Heating supply: Gas central heating
    • Sewerage: Mains
    • Water supply: Mains
  • Other information
    • Property age bracket: Victorian(1837 - 1901)

Location