Asking Price £360,000

4 bed terraced house for sale in Lucas Avenue, Exeter

Shortlist

Key features

  • GREAT INVESTEMENT PROPERTY
  • POPULAR STUDENT LOCATION
  • 4 BEDROOMS
  • SPACIOUS COURTYARD GARDEN
  • MODERN KITCHEN
SUMMARY A well-presented four-bedroom property located on Lucas Avenue, making it highly attractive to student tenants. The property blends original features and character with modern living.

Location: Ideally situated within walking distance of the University of Exeter (including St Luke's Campus) and Exeter city centre. A local Co-op is just a short walk away for everyday convenience.

Living Space: Spacious living room with double doors leading to a generous rear garden, creating a bright and airy space ideal for communal living.

Bedrooms: Four bedrooms arranged over two floors, comprising three double bedrooms and one smaller room.

Outdoor Area: Large, secure courtyard garden with gated access and an external utility/drying room housing a tumble dryer.

Parking: On-street residential parking (permit required).

Tenure: Freehold
Council Tax: C
EPC: D

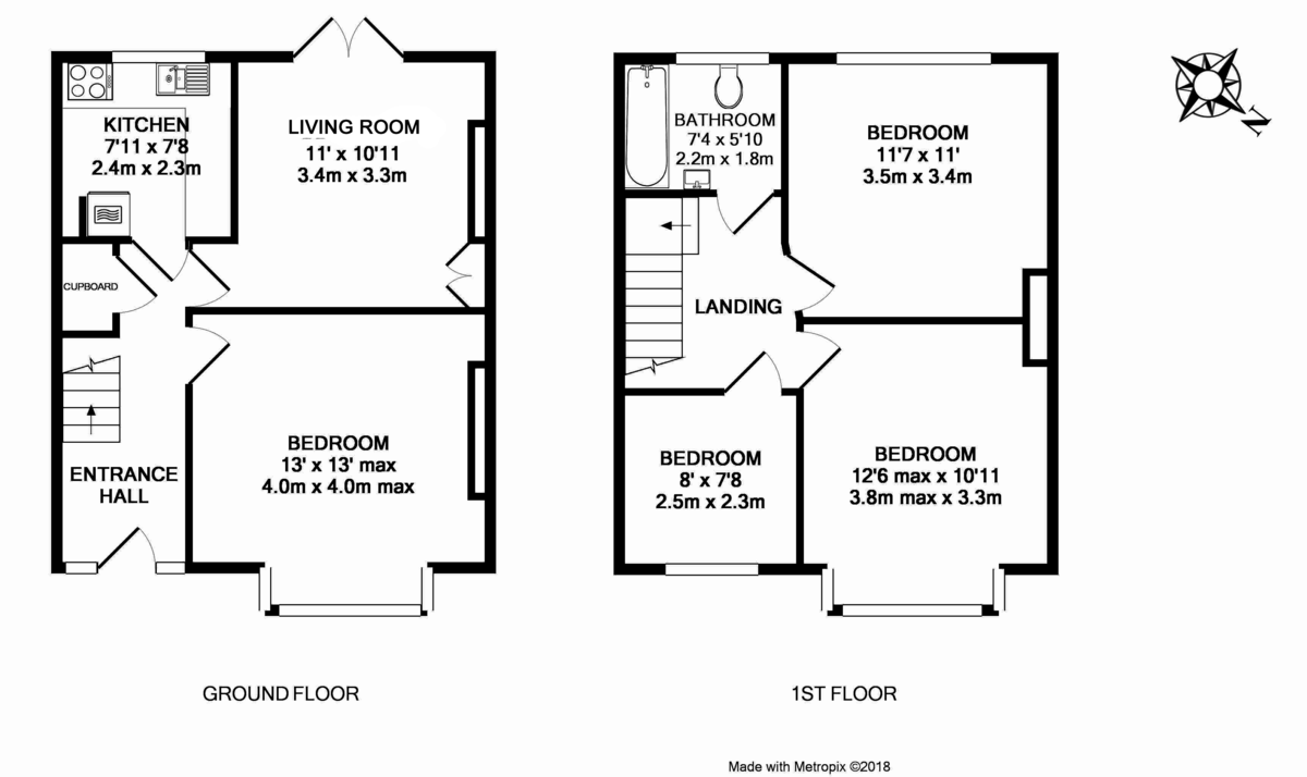
LOUNGE 11' 00" x 10' 11" (3.35m x 3.33m) Wall mounted radiator, fire surround, uPVC double doors leading to garden.

KITCHEN 7' 11" x 7' 8" (2.41m x 2.34m) A range of wall and base units, incorporating an integrated, dishwasher, oven, microwave, electric hob, and extractor hood. uPVC doubled glazed window overlooking the rear garden.

BEDROOM 1 13' 00" x 13' 00" (3.96m x 3.96m) Wall-mounted radiator, fire surround with hearth (currently boarded up). uPVC double glazed bay windows overlook the front.

BATHROOM 7' 4" x 5' 10" (2.24m x 1.78m) Two wall-mounted heated towel rails, wall-mounted mirrors, WC, wash hand basin, and a bath with shower over (running off the boiler). uPVC doubled glazed window with frosted glass over looking the garden.

BEDROOM 2 11' 7" x 11' 00" (3.53m x 3.35m) Wall-mounted radiator, fire surround and hearth (currently boarded up). uPVC doubled glazed window overlooking the rear garden.

BEDROOM 3 12' 6" x 10' 11" (3.81m x 3.33m) Wall-mounted radiator, fire surround and hearth (currently boarded up). uPVC doubled glazed window overlooks the front.

BEDROOM 4 8' 0" x 7' 8" (2.44m x 2.34m) Wall-mounted radiator, built in single wardrobe/mirror. uPVC doubled glazed window overlooking the front of the property.

LETTINGS/RENTAL INFORMATION This property has been let out to students since 2006. Rented for 2025/26 academic year for £2512pcm. Tenants found and secured for the 2026/27 academic year for £2636pcm which is a 8% yearly yield.


SERVICES Electric Supply: Mains
Heating Supply: Mains Gas
Sewerage: Mains
Water Supply: Mains
Mobile Signal: Several networks showing as available including EE, Vodaphone, 3 and 02
Broadband: Standard and Ultrafast

Stamp duty due

Based on a sale price of £360,000 the total amount of stamp duty payable will be:

*

Last updated: The calculator has been updated to reflect changes in stamp duty following the Autumn Budget on 30th October 2024 for April 1st 2025 onwards.

* This value is based on the standard rate and not applicable to first-time buyers or buy-to-let / second home buyers.

Further details

  • New Listing: Launched in the last 10 days
  • Status: Available
  • Council tax band: C
  • Tenure: Freehold
  • Reference: 709083

What else you need to know?

Utility supply, rights and restrictions

  • Utility supply
    • Broadband: ADSL
    • Electricity supply: Mains
    • Heating supply: Gas central heating
    • Sewerage: Mains
    • Water supply: Mains
  • Other information
    • Property age bracket: 1920s to 1930s

Location