Sold STC
£280,000

3 bed terraced house for sale in East John Walk, Newtown

Shortlist

Key features

  • INVESTMENT OPPORTUNITY
  • 3 BEDROOM STUDENT HMO
  • CHARMING
  • GREAT CITY CENTRE LOCATION
  • CLOSE TO EXETER UNIVERSITY ST LUKES CAMPUS
SUMMARY Nestled in the desirable area of Newtown, this three bedroom terraced house offers a perfect blend of period charm and modern convenience. A well laid out and spacious student investment property has achieved many years of successful renting.

Location: Ideally located within walking distance of Exeter City Centre, Exeter University St Luke's campus, RD&E hospital and there is a Waitrose supermarket on the doorstep.

Living Space: Cosy and comfortable living space with feature and character fireplace.

Bedrooms: 3 good sized bedrooms, the property is arranged over three floors so feels spacious and uncrowded.

Outdoor Area: Enclosed low maintenance rear courtyard

Parking: The road is pedestrianised, there is residential permit parking nearby.

Property Tenure: Freehold
Council Tax: C
EPC: D


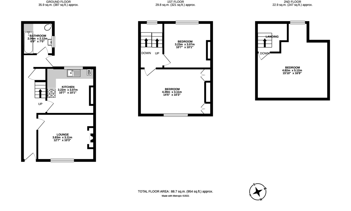
LOUNGE 12' 6" x 10' 2" (3.83m x 3.11m) Fireplace, radiator, uPVC double glazed window with front aspect.

KITCHEN/BREAKFAST ROOM 10' 6" x 10' 0" (3.22m x 3.07m) uPVC double glazed window with rear aspect, radiator, boiler, cooker, plumbing and space for washing machine, gap for another appliance. Sink with mixer tap and drainage.

BATHROOM 6' 9" x 6' 11" (2.06m x 2.12m) Radiator, uPVC double glazed window with side aspect, sink, WC and bath with shower.

BEDROOM 1 14' 4" x 10' 2" (4.39m x 3.11m) Radiator, uPVC doubled glazed window with front aspect, build in wardrobes and storage.

BEDROOM 2 10' 7" x 10' 0" (3.23m x 3.07m) Radiator, uPVC doubled glazed window with rear aspect.

BEDROOM 3 15' 9" x 16' 9" (4.82m x 5.12m) uPVC double glazed window with rear aspect, eves storage, radiator,

LETTINGS/RENTAL INFORMATION Currently empty. In the current condition it could achieve a rent of £137 pw pp, total monthly rent £1,779, yearly total rent of £19,569 which is a 6.5% yearly yield. Has the potential with some improvements to achieve a rent increase to £155 pw pp, total monthly rent £2,013, yearly total rent £22,143 which is a 7.4% yearly yield.

SERVICES SERVICES Electric Supply: Mains
Heating Supply: Mains Gas
Sewerage: Mains
Water Supply: Mains
Mobile Signal: Several networks showing as available including EE, Vodaphone, 3 and 02
Broadband: Standard, Superfast and Ultrafast

Stamp duty due

Based on a sale price of £280,000 the total amount of stamp duty payable will be:

*

Last updated: The calculator has been updated to reflect changes in stamp duty following the Autumn Budget on 30th October 2024 for April 1st 2025 onwards.

* This value is based on the standard rate and not applicable to first-time buyers or buy-to-let / second home buyers.

Further details

  • Status: Sold STC
  • Council tax band: C
  • Tenure: Freehold
  • Reference: 685377

What else you need to know?

Utility supply, rights and restrictions

  • Utility supply
    • Broadband: ADSL
    • Electricity supply: Mains
    • Heating supply: Gas central heating
    • Sewerage: Mains
    • Water supply: Mains
  • Other information
    • Property age bracket: Victorian(1837 - 1901)

Location