Sold STC
Asking Price £245,000

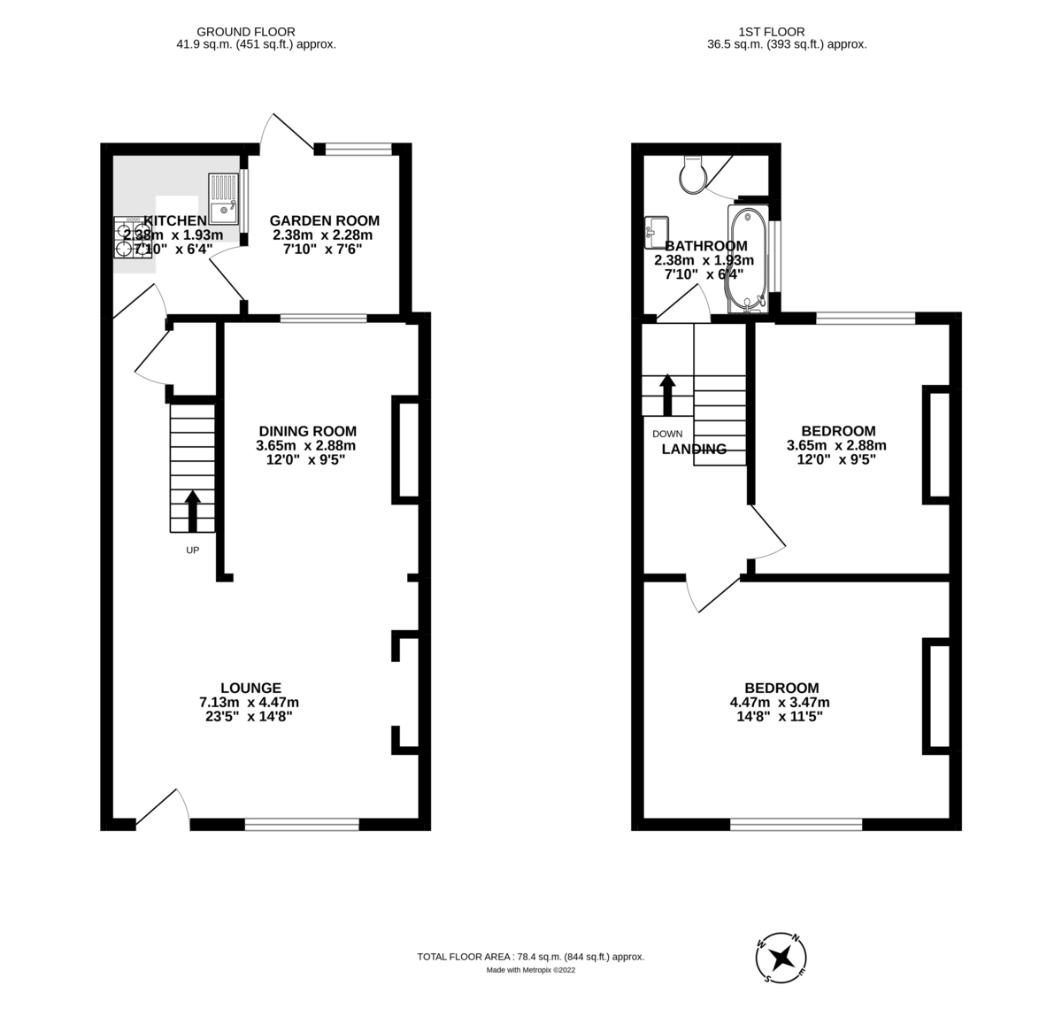
2 bed terraced house for sale in Bridge Cottages, Well Street

Shortlist

Key features

  • 2 Bedroom Cottage
  • Prime City Centre location
  • Excellent transport ameniteis
  • Gas Central heating
Tucked away in a quiet yet exceptionally central location, this beautifully presented 2-bedroom cottage offers the perfect blend of character, comfort, and convenience. Just moments from Exeter's vibrant high street, historic landmarks, and excellent transport links, this rare gem provides a peaceful retreat right in the city centre.

Inside, the property boasts generously sized living areas, including a bright and airy lounge with feature fireplace, a modern fitted kitchen with ample storage, and two well-proportioned double bedrooms.

Whether you're a professional, downsizer, or investor, this delightful home offers the unique opportunity to enjoy city living without compromising on space or tranquillity.

Stamp duty due

Based on a sale price of £245,000 the total amount of stamp duty payable will be:

*

Last updated: The calculator has been updated to reflect changes in stamp duty following the Autumn Budget on 30th October 2024 for April 1st 2025 onwards.

* This value is based on the standard rate and not applicable to first-time buyers or buy-to-let / second home buyers.

Further details

  • Status: Sold STC
  • Council tax band: B
  • Tenure: Freehold
  • Reference: 679499

What else you need to know?

Utility supply, rights and restrictions

  • Utility supply
    • Heating supply: Gas central heating
  • Other information
    • Property age bracket: Victorian(1837 - 1901)

Location