Sold STC
Asking Price £195,000

2 bed apartment for sale in Ground Floor Flat, 33 St. Johns Road

Shortlist

Key features

  • Non HMO student let
  • Spacious 2 bedroom flat
  • Ground Floor
  • Private Garden
  • Let for 2024/25 Academic Year
SPACIOUS 2 bedroom ground floor flat currently let as an established non HMO student property.

Let for 2024/2025 Academic Year at £15,730 pa exclusive of utilities

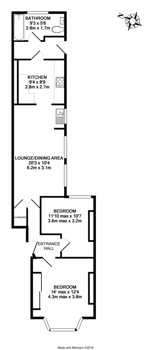
This spacious 2 bedroom ground floor flat is approximately 63 square meters.

As you enter the flat which is situated off the communal hallway, you enter the entrance hall with doors off to each bedroom and the lounge. The lounge is open plan to a dining area and the kitchen. The kitchen leads to a small hallway with access to the private garden to this flat; and the bathroom.

The property is situated in the Mount Pleasant area of Exeter, heavily populated with students.

KITCHEN/DINER/LOUNGE 27' 0" x 10' 3" (8.23m x 3.12m) Bright and Spacious Open Plan Kitchen/Diner/Lounge. Kitchen contains Fitted Gas Hob, Fitted Single Electric Oven, Extractor Fan, Range of Base and Wall Units with a one and a half bowl sink with drainer. There are two UPVC double glazed windows and a one Wooden single glazed window to the open plan area.

INNER HALL/UTILITY AREA 3' 6" x 9' 0" (1.07m x 2.74m) Utility Area off of Kitchen with UPVC Back Door onto rear Courtyard Garden. With Space for Washing Machine and door onto Bathroom.

BATHROOM 5' 6" x 8' 0" (1.68m x 2.44m) With Shower over Bath with matching white sanitary ware. Ideal Boiler situated in cupboard to corner of Bathroom with Obscured Single Aluminium Glazed Window.

BEDROOM 1 12' x 14' (3.66m x 4.27m) Featuring large UPVC Double Glazed Bay Window

BEDROOM 2 10' 5" x 11' 7" (3.18m x 3.53m) Second Double Bedroom with Single Glazed Wooden Window.

REAR COURTYARD GARDEN with Pedestrian Access Via Gate.

Further information on this property please contact Joanne Johns or Chris Welch

Stamp duty due

Based on a sale price of £195,000 the total amount of stamp duty payable will be:

*

Last updated: The calculator has been updated to reflect changes in stamp duty following the Autumn Budget on 30th October 2024 for April 1st 2025 onwards.

* This value is based on the standard rate and not applicable to first-time buyers or buy-to-let / second home buyers.

Further details

  • Status: Sold STC
  • Size: 63 sq m
  • Council tax band: B
  • Tenure: Leasehold
  • Reference: 573137

What else you need to know?

  • Heating supply: Gas central heating

Location